House of the Future

Details
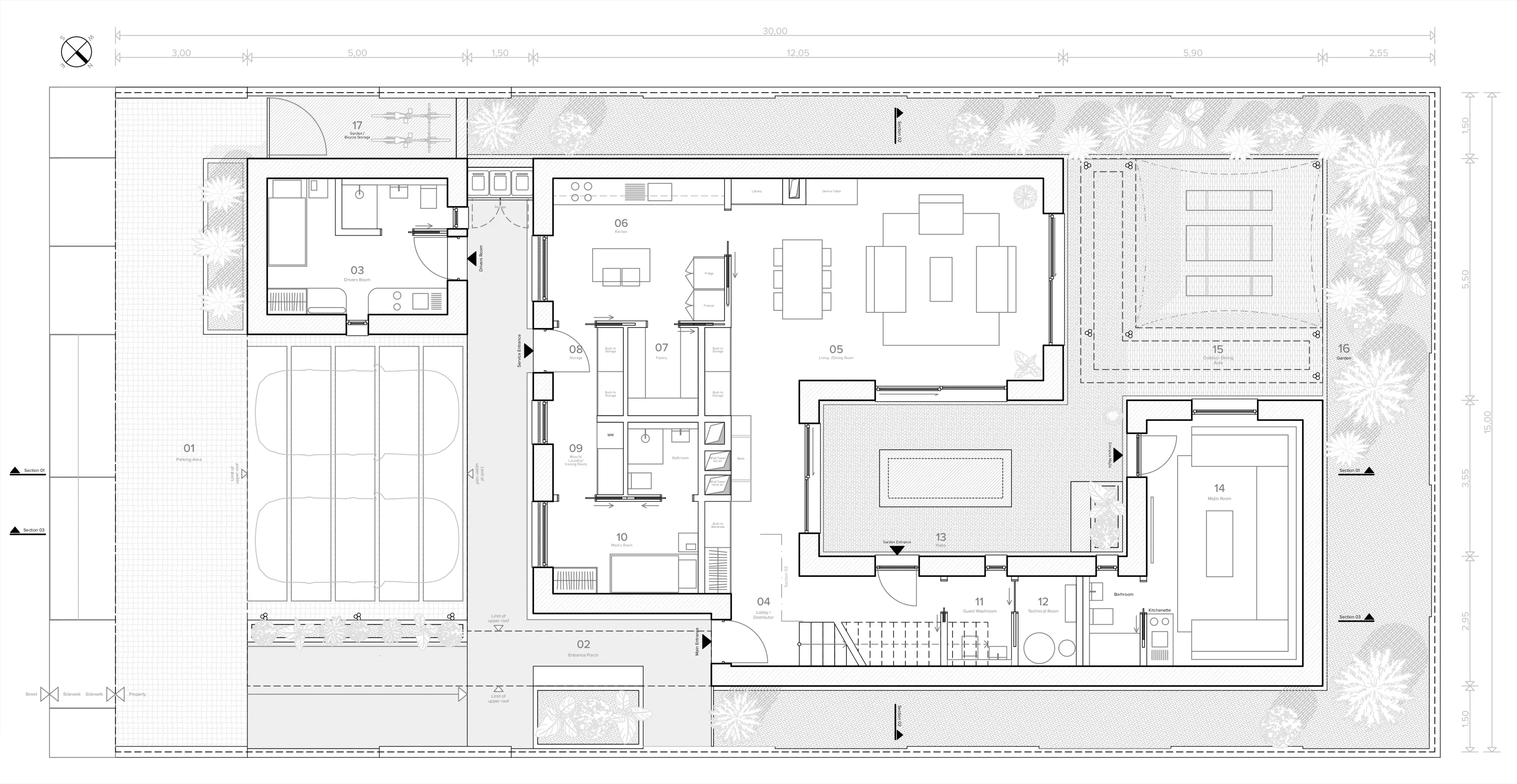
                House 07 is a sustainable residential prototype designed for the United Arab Emirates. With minimal means, it creates a calm, climate-adapted living experience. Passive cooling strategies, thermal mass, and a central patio ensure comfortable indoor climate and social interaction. Prefabricated elements made of monolithic insulating concrete enable precise, low-maintenance construction — cost-efficient without compromising architectural quality. Photovoltaics and natural materials support the future-oriented concept.
            








