Concrete House
Winner
Excellent Architecture
Architecture

Details
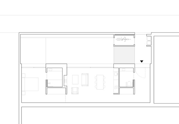
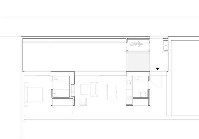
Dieses einfache, durch Mauern gefasste Hofhaus wurde in einem Denkmalschutzgebiet in Hampstead erbaut. Der Grundriss entsteht durch die Einfügung von zweier Badezimmer Volumen. Dadurch entsteht ein Innen- und Außenraum mit Eingangshalle, Lobby und Schlafzimmer. Dieses sehr reduzierte und einfache Konzept haben wir in monolithischer Betonbauweise umgesetzt. Diese Materialität verleiht dem Projekt eine nahezu archaische Einfachheit.
The Jury‘s Statement
Dieses Einfamilienhaus beeindruckt durch seine minimalistische Konzeption, die durch die monolithische Betonbauweise eine archaische Einfachheit erreicht. Die geschickte Integration von zwei Volumen schafft harmonische Innen- und Außenräume, die sowohl funktional als auch ästhetisch ansprechend sind.





